RemodelAI Inspiration
Small Barndominium Floor Plans Ideas & Designs | RemodelAI
Discover stunning small barndominium floor plans ideas powered by AI. Get photorealistic design concepts and inspiration for your next remodeling project.





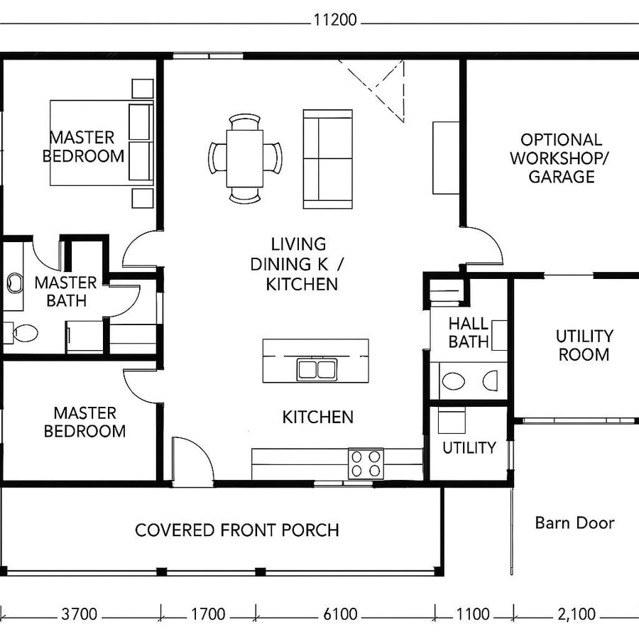
small barndominium floor plans
RemodelAI helps you visualize bespoke concepts for small barndominium floor plans. Upload your photo, pick a style, and let our AI deliver photorealistic transformations in seconds.
Each concept is tuned to enhance curb appeal, interior comfort, and architectural harmony. Whether you are refreshing a small barndominium floor plansor crafting marketing visuals, RemodelAI supplies production-ready images faster than traditional design workflows.
Ideal For
Homeowners · Agents · Designers
Turnaround
Under 60 seconds per render